Tata Carnatica is a premier, integrated township by Tata Housing, set to redefine luxury living in Devanahalli, North Bangalore. Spread across a sprawling 140-acre site—divided into ~100 acres of residential and ~40 acres of commercial space—it combines housing, retail, workspaces, and green zones seamlessly. Named after Karnataka’s Carnatic music tradition, the township is designed around a central “spine road” with diverse zones like Tata Swaram (11+ acres of plotted developments) and Tata Raagam
Amenities
Tata Carnatica - Amenities
Basketball Court
Lawn Terraces
Clubhouse with Gymnasium
Kids Play Area
Swimming Pool
Amphitheatre
Jogging Track
Skating Rink
Multipurpose Lawn
Surface Car Park - Turf Cells
Location
Tata Carnatica - Location
Nearby Landmarks
- Kempegowda Int. Airport: ~7 km
- Metro Station: ~10 km
- Sri Shirdi Sai, Ramaiah Leena Hospital: ~650 m
- Taj Bengaluru KIAL
- KIADB Hardware Park
- Microsoft
- Intel
- Hardware Park
- Delhi Public School
- Canadian International School
- LULU Value Mart
- Galleria Mall (RMZ)

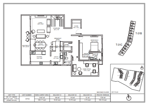
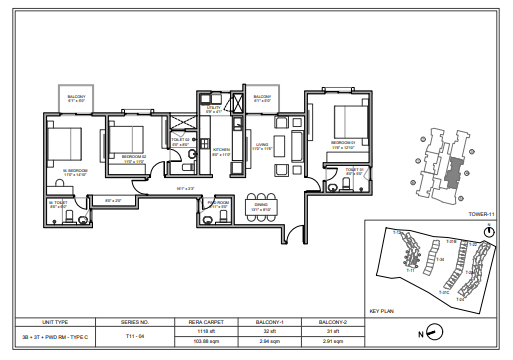
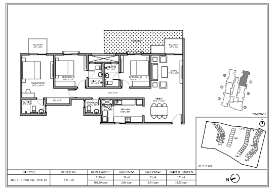
Site & Floor Plan
Amenities
Gallery